 
                    Terrain à vendre avec permis accepté et purgé
Exclusivité : Terrain constructible à vendre avec permis purgé, à Barcelonnette (04400) - 750 m²
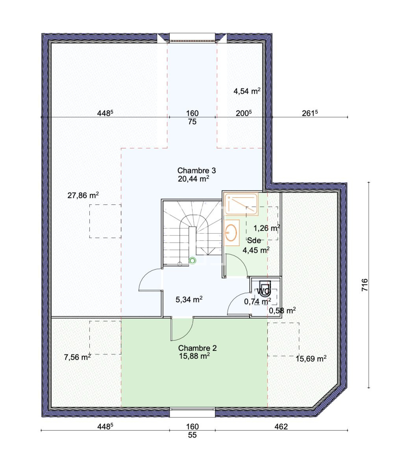
Idéalement situé avenue Ernest Pellotier, à proximité du centre Jean Chaix, ce terrain plat d'environ 750 m² est prêt à accueillir votre projet de construction. Le permis de construire en conformité avec les normes RT2020 est accepté et purgé de tous recours, pour une maison avec garage d'une surface plancher de 139 m².
Les taxes liées à la viabilisation (TLE), les études thermiques, et les taxes d'aménagement partiel (TAP) sont déjà réglées, offrant un projet avec un minimum de contraintes administratives.
Profitez de ce terrain offrant un cadre de vie agréable, à deux pas du centre-ville de Barcelonnette et des commodités. Une opportunité à saisir pour un projet personnalisé dans la vallée de l'Ubaye.
Contactez-nous pour plus d'informations et pour visiter.
L'agence Jausiers immobilier recherche des biens à vendre pour ses clients. Nous vous offrons l'étude de marché de votre bien et étudions une stratégie de mise en vente. Consultez-nous.
- 
            Commerces et santé
            
- 
            Loisirs
            
- 
            Ecoles
            
- 
            Transports
            
- 
            Pratique
            
 
                            
                                                                            Les informations recueillies sur ce formulaire sont enregistrées dans un fichier informatisé par La Boite Immo agissant comme Sous-traitant du traitement pour la gestion de la clientèle/prospects de l'Agence / du Réseau qui reste Responsable du Traitement de vos Données personnelles.
La base légale du traitement repose sur l’intérêt légitime de l'Agence / du Réseau.
Elles sont conservées jusqu'à demande de suppression et sont destinées à l'Agence / au Réseau.
Conformément à la loi « informatique et libertés », vous pouvez exercer votre droit d'accès aux données vous concernant et les faire rectifier en contactant l'Agence / le Réseau.
Si vous estimez, après avoir contacté l'Agence / le Réseau, que vos droits « Informatique et Libertés » ne sont pas respectés, vous pouvez adresser une réclamation à la CNIL.
Nous vous informons de l’existence de la liste d'opposition au démarchage téléphonique « Bloctel », sur laquelle vous pouvez vous inscrire ici : https://www.bloctel.gouv.fr 
Dans le cadre de la protection des Données personnelles, nous vous invitons à ne pas inscrire de Données sensibles dans le champ de saisie libre
Ce site est protégé par reCAPTCHA, les Politiques de Confidentialité et les Conditions d'Utilisation de Google s'appliquent.
                                                                    
 
                 
                         
                                             
                                             
                                            